Thank you for visiting this consultation website
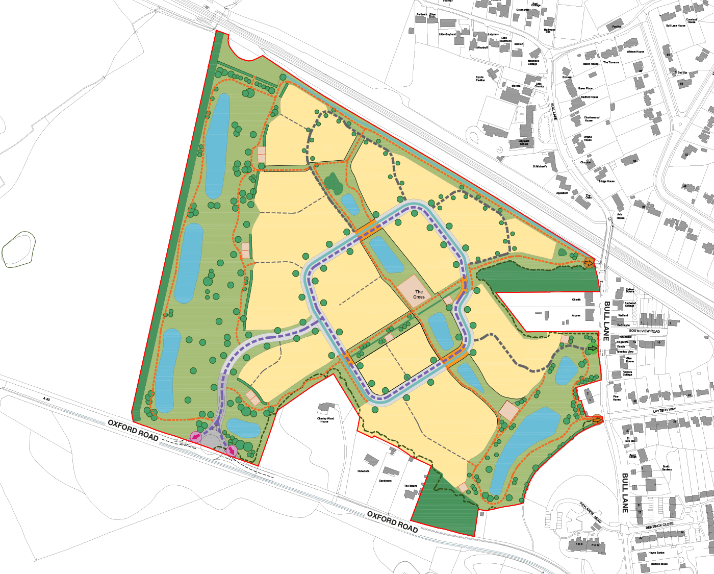
Richborough is consulting the local community on plans for a new landscape-led residential development of approximately 400 new homes, including affordable housing, together with significant areas of high-quality public open space incorporating sustainable drainage systems. Vehicular access is proposed via a new roundabout from Oxford Road (A40) with separate emergency, pedestrian and cycle access from Bull Lane.
Prior to the submission of an outline planning application (which would include full details of the access), Richborough welcomes your thoughts, comments and suggestions. Your input is valuable in helping to create a scheme that responds to the needs of the local community and the surrounding area.
About Richborough
Richborough was founded in 2003 and is one of the UK’s most successful specialist land promotion businesses. Richborough supplies the commercial and housebuilding industries with consented land to accelerate the delivery of new homes and jobs.
Working in partnership with private and public sector landowners, estates, charities, trusts, dioceses and local stakeholders, Richborough promotes land via the planning system for residential, commercial and mixed-use development.
Focusing heavily on placemaking, local communities and how development can complement and enhance existing infrastructure, the Richborough land promotion model incentivises all parties to ensure that new homes and jobs will be delivered at the earliest opportunity.
Site Location
The c. 22.4 hectare sustainably located site is situated c.1.3km (as the crow flies) to the west of Gerrards Cross town centre. The site is bound by the A40 Oxford Road to the south, the Chiltern Mainline to the north, Bull Lane to the east and agricultural land to the west.
A Public Right of Way (PRoW) runs along the south-eastern boundary of the site, connecting Bull Lane in the east and the A40 Oxford Road in the south. There are further PRoWs that run to the north, south and west of the site providing wider connectivity.
Planning Background
The site is currently in the Green Belt. However, Richborough and its consultant team have assessed the site against the criteria for Grey Belt as included in the National Planning Policy Framework (NPPF) published in December 2024. This has also addressed whether the proposed development would satisfy the Golden Rules for any development on Green or Grey Belt land.
The assessment confirms that the site does not strongly contribute to the relevant Green Belt purposes and can be properly classified as being Grey Belt land. Accordingly, and as a matter of principle, the site could come forward for residential purposes without either being classified as inappropriate development or fundamentally undermining the purposes of the remaining Green Belt across South Buckinghamshire.
Buckinghamshire Council acknowledge that there is only a 0.91-year housing land supply in South Buckinghamshire based upon the Standard Approach introduced by the NPPF. As such, there is a demonstrable unmet need for the development of new homes on Grey Belt land in South Buckinghamshire within which Gerrards Cross is located. Grey Belt land is a means by which this need can be met without undermining the Green Belt.
Gerrards Cross is a sustainable location for housing development. The town’s sustainability credentials include being located on the Chiltern Mainline railway with frequent train services from the station to places including London, High Wycombe and Oxford; the accessibility to other key destinations by bus (e.g. Slough, Wexham Park Hospital, Uxbridge and Heathrow Airport) and the availability of a wide range of shops, services and facilities in the town centre. There are also further shops, services and facilities in Chalfont St Peter.
The site itself is in an accessible location relative to Gerrards Cross town centre, the railway station, the bus services operating along Oxford Road and near-by facilities such as the Marks and Spencer Foodstore at the BP filling station and the Bull Public House & Restaurant and St Joseph’s Catholic Primary School. All these facilities can be accessed on foot or cycle/scooter. The location of the site satisfies the requirement for a proposed development on Grey Belt land to be in a sustainable location.
To fully meet the Golden Rules for development on Grey Belt land, the proposals include 50% of the dwellings being for affordable housing purposes and the provision of an extensive area of on-site green space which would be accessible on-foot to existing and future residents. As with any proposals, where it is demonstrated to be necessary, improvements would be made to local infrastructure, whether delivered directly by Richborough or via financial contributions paid to the Council to deliver the required enhancements (e.g. school places, public transport, healthcare, etc).
The Vision
The proposal will create a high quality and sustainable residential development which will be well related to Gerrards Cross. Taking cues from the surrounding area, the development will blend local character with modern sustainable design principles to create a place for residents to be proud of. Residents will also have genuine alternative travel choices to private vehicles through the provision of segregated, high-quality walking and cycling infrastructure connections to the surrounding area and access to public transport.
The development will deliver a sympathetic extension to Gerrards Cross, providing a variety of homes to cater for people at every stage of life. Tree-lined streets and significant areas of public open space, including a new village green, will promote active lifestyles and integrate natural features throughout the scheme.
Our proposals include:
- Circa 400 new homes with a range of house types, sizes and tenures;
- 50% affordable housing;
- Vehicular access from Oxford Road (A40);
- Pedestrian and cycle access from Bull Lane;
- A sustainable, landscape-led development, creating new areas of public open space for the benefit of new and existing residents including a new village green, parkland, reinstated woodland (Chantry Wood), ecological areas and biodiversity net gain improvements;
- Natural and equipped children’s play areas;
- An active travel strategy, including cycle and pedestrian routes and greenways throughout the development;
- Additional wellbeing benefits including community gardens and allotments; and
- Contributions to support local infrastructure.
New Homes
Richborough’s proposals include a range of house types in line with the latest housing needs evidence for Buckinghamshire Council. The precise layout and detail of the homes will be agreed with the Council during discussions on the reserved matters application, which will follow approval (subject to planning) of the outline application.
50% of the new homes will be provided as affordable housing. The provision of a range of house types, sizes and tenures will widen the choice of housing in the area and ensure the creation of a mixed and cohesive community that is representative of the local population.
Access and Transport
Vehicle access to the site is proposed from Oxford Road (A40) via a new three-arm priority roundabout. An emergency access link to Bull Lane is proposed to the east of the site.
Two pedestrian/cycle accesses are proposed from Bull Lane: firstly via the existing PRoW, to connect to the existing footway on Layters Way and secondly, adjacent to the railway bridge to provide a connection to the existing footpath and PRoW heading east to Gerrards Cross railway station and the town centre.
The site is accessible on foot and cycle to a range of facilities within the local area, including Gerrards Cross town centre and the railway station. A bus service operates along the A40 to High Wycombe, Uxbridge, Beaconsfield and Heathrow Airport.
A Transport Assessment will be submitted with the planning application and discussed with Highways officers at Buckinghamshire Council. A Travel Plan will be prepared alongside the Transport Assessment to ensure the site is made as sustainable as possible with a view to reducing the number of single occupancy vehicle trips and promote alternative, more sustainable modes of travel to/from the site.
Sustainable Drainage Systems
The site lies within Flood Zone 1, which is the lowest risk of flooding. The proposals incorporate Sustainable Drainage Systems (SuDS) measures which include attenuation basins, permeable paving and vegetated swales to manage surface water runoff, mitigate flooding, and support biodiversity.
Energy Efficiency
All new build dwellings will have electric vehicle charging facilities. Changes to building regulations to deliver the Government’s ‘Future Homes Standard’ will result in a 75% reduction in CO2 when compared to today.
Community Infrastructure
The Community Infrastructure Levy (CIL) is a fixed rate payment which Councils can charge to off-set the impact of additional homes on local infrastructure such as roads, schools, open space and health centres. In addition to a CIL contribution, it is expected that Richborough will make further contributions to the improvement of local infrastructure and services through a Section 106 Legal Agreement.
Next Steps
An outline application is due to be submitted following this consultation with timings dependent on a range of factors including consultations with statutory consultees, alongside the completion of the necessary technical work.
Your response will help us shape the final proposals that will be submitted to Buckinghamshire Council.
Following the submission of the application, Buckinghamshire Council will undertake a period of statutory consultation on the proposals. At this stage, you will have the opportunity to submit your comments to the council before a decision is made.
Richborough will continue to be engaging with the community and stakeholders as and when an application is submitted to Buckinghamshire Council. The website will remain live during this period for receipt of any further comments about the content of the proposals as they evolved. This does not alter the ability for people to make formal comments about the application to the Council.
Feedback
Thank you for taking the time to review the proposals. Your feedback is important to us and forms part of the public consultation process.
Please let us know if you have any comments on the proposals, including, for example, on the proposed layout, vehicle and pedestrian/cycle access, local housing needs and community infrastructure.
Your details will not be passed to any third-party organisations and will only be used internally by Engage Planning Ltd and Richborough, for the purposes of understanding your views on the proposals. Comments made on this form may be used to provide an example of the feedback received, although not attributed, as part of the report of this consultation and the Statement of Community Engagement. For the full privacy statement please see www.engageplanning.co.uk.
Engage Planning Ltd, Warwick Innovation Centre, Warwick Technology Park, Warwick CV34 6UW
Please provide feedback by completing the form below.
Providing contact details is optional.



